Mailing List flyrotary@lancaironline.net Message #1065
From: Rino <lacombr@nbnet.nb.ca>
Sender: Marvin Kaye <marv@lancaironline.net>
Subject: Re: [FlyRotary] Oil cooler dimensions?
Date: Wed, 12 Mar 2003 13:35:13 -0500
To: <flyrotary>
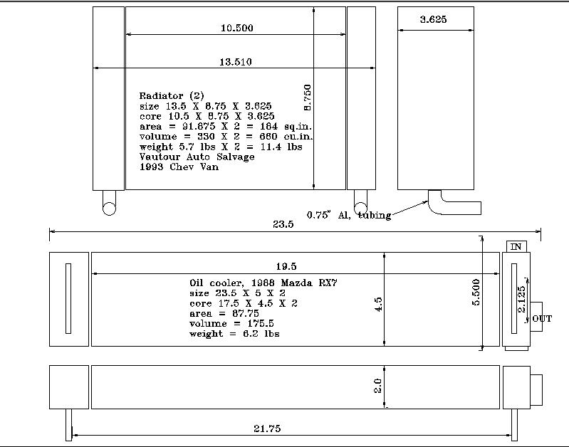
Here is a graphic of the cooler I have.

Rino

13brv3@mchsi.com wrote:

Greetings all,

I did a lot of shopping for panel and engine goodies while I was holed up in
the frozen hotel.  I think I have all the major items accounted for, except
for the radiator and oil cooler.  I'm talking to Griffin about a custom rad,
so that will be another message eventually, but for now, I'm interested in
hearing about oil coolers.

On the Mazdatrix page http://www.mazdatrix.com/b6.htm  they show 3 factory
oil coolers.  If I'm not mistaken, the 86-92 13B, pn- 14-700A-N326 cooler is
the one that everyone recommends.  Is that correct?  It's about $500 new, so
I'd probably try to find a good used one.

If this is the correct cooler, can someone measure one, and tell me the
dimensions?  I'm hoping to fit one of these in the right cheek of the stock
RV-3 cowl, and keep the radiator under the engine.

Thanks!

Rusty


>>  Homepage:  http://www.flyrotary.com/

--
ÿØÿà
Image
cooler.jpg
Subscribe (FEED) Subscribe (DIGEST) Subscribe (INDEX) Unsubscribe Mail to Listmaster